VP70 PVC window is perfect for those who seek for a product that combines good quality and price. This series meets all the European standards. They are also classy and elegant which makes them fit almost every interior. The main advantage of this series is a very low parameter of thermal losses as well as good protection from an outside noise. These window will satisfy all those who value warmth and silence inside their houses.
Plastic windows are very good choice due to their damage resistance and solidness. Also such profiles are very easy to maintain and moisture resistant. Furthermore wide range of colors allows to adjust window's design to your interior. There are a lot of wooden covers available, which meets preset design trends. There's also a possibility of producing two-color window - different on the inside and outside, which is a very common solution. External color fits to the facade and interior to the walls or doors inside the house.
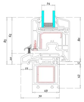
Profile:
- VEKA Perfectline, PVC, 5-chamber, 70mm, A-class profiles,
- multi-bent galvanized steel inside the profile - makes the window solid and stable,
- Thickness of profile's edges in the highest quality standard EN 12608 A-class (A-class window profiles have the thickness of outside edges of at least 3mm and the width of the inside chambers of over 5mm which guarantees high stability, low susceptibility and perfect parameters of acoustic insulation),
- co-extrusion – dyed in special mass – the window's core is in the same color as outside cover - small scratches and damages won't be visible,
- The profiles are available in range of colors and woodish veeners in standard: white, anthracite, winchester, golden oak, dark oak, walnut, mahogany. Other colors - for special request.
Glass:
- in standard there's a double glazing 4-16-4 Ug=1,1 (EN673), but there's a possibility of choosing triple glazing as well,

- Heat-absorbing between-glass steel frame - four times better thermal insulation properties compared to other commonly used solutions,
- A hudge range of other types of glazing: ornamental, heat-proof, safe: laminated, tempered.
| ORDINARY GLASS | TEMPERED GLASS | LAMINATED GLASS |
| breaks and gives long, sharp parts |
processed with controlled thermal or chemical treatments to increase its strength; when broken, it shatters into small granular chunks instead of splintering into jagged shards
|
constructed of two layers of glass joined together with interlayer to form a permanent bond even when they break; almost impossible to break
|
Fitting:
- ROTO NT - most respected German fittings manufacturer,
- Aluminum handle with four-step tilting mechanism in tilt and turn windows - allows adjusting opening to the current weather conditions,
- Microventilation - allows for air-exchage without opening the window,
- Blockade of incorrect position of the handle and tilt stabilizer - protects the hinges from damage,
- EPDM gaskets - do not break, are ozone-proof and very resistant to bending, scratching and pressing.
- possible openings:
- standard:
| FIXED | TILT | TURN | TILT AND TURN | TILT AND SLIDE | 3 SASHES AND MORE |
![]() |
![]() |
![]() |
![]() |
![]() |
![]() |
* View from the inside
- sliding door (available in other PVC profiles: VEKA V82, Softline 82:
| HST | PSK | TILT AND SLIDE |
![]() |
![]() |
![]() |
- ONZ window - balcony door with opening to the outside,
- Other construction options:

...and many others. Contact us, send an inquiry and we will make windows exactly like you want.
Supplementary accessories:
- window-sill, mounting bars, tailor-made external shutters,
- round or triangular shapes,
- safe house option: security sensors, anti-burglar system, child protection system (handle with lock, tilt-first handle, etc.),
- low treshold, air inlets, balcony lock, outside grips,
- wide range of handles in different shapes, lengths and colors, it is the perfect complement for window frames.They are made from the best quality materials. Only proven technology it is used In their construction; it ensures a long-term comfort of their use. The mechanism is robust, while allowing for convenient control of the window without the use of force.
| Secustik Handles model Swing | |||||
| Swing Secustik, Titanium | Swing Secustik, silver | Swing Secustik, old Gold | Swing Secustik, brown | Swing Secustik, white | Swing Secustik with key and button |
![]() |
![]() |
![]() |
![]() |
![]() |
![]() ![]() |
| Secustik Handles model Atlanta | |||
| Secustik Atlanta, titanium | Secustik Atlanta, old gold | Secustik Atlanta, brown | Secustik Atlanta, white |
![]() |
![]() |
![]() |
|
| Handles for sliding windows Patio Automatic | ||||
| Patio Automatic Handle, white | Patio Automatic Handle, brown | Patio Automatic Handle, medium brown | Patio Automatic Handle, silver | Patio Automatic Handle with key, |
![]() |
![]() |
![]() |
![]() |
![]() |
| Toulon handle Secustik | |||||
| Secustik Toulon white | Secustik Toulon black | Secustik Toulonsilver | Secustik Toulonold gold |
Secustik Toulon titanium | l Toulon with key and for Patio and HST systems |
![]() |
![]() |
![]() |
![]() |
![]() |
![]() ![]() ![]() |
- PVC filling instead of glass and decorative glass. It is A perfect solution, to provide light into the interior while cut off from the rest of space. Application of this type of glass in a room, allows for varying degrees of light scatter and blur the contours of the image, guaranteeing the confidentiality of the persons residing. Due to the decorative value,ornamental glass, are perfectly suited as office space walls, railings elements or glass doors, giving the interior a of lightness and modernity.
- VETREX Sp. z o.o. | Skarszewska 13 | Tczew/Rokitki 83-110 | Poland | [email protected]
W oparciu o okno referencyjne o wymiarach:szer./wys. 1230 x 1480 mm
- Straight
- Windows
No posts found






































