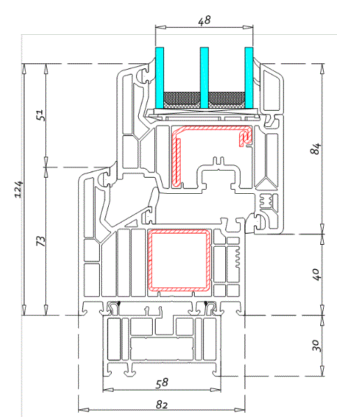
Das V82 Profil zeichnet sich durch seine hohe Stabilität aus, dafür sorgen umlaufende Stahlarmierungen in Rahmen und Flügel. Ein Mehrkammer-Rahmen mit dreifachem Dichtungssystem sichert eine Wärmedämmung, die besonders in Fensterprofilen der höchsten Güterklasse A bemerkbar ist. Die Serie V82 charakterisiert sich durch beinahe genauso günstige wärmedämmende Parameter wie die Produkte der Serie V90+. Eine schmale Einbautiefe mit 82mm sorgt dafür, dass das System perfekt für die Renovierung der bereits isolierten Gebäude geeignet ist. Unsere speziellen Stahlarmierungen aus verzinktem Stahl und der Kunststoff der Güte-Klasse A sorgen für ein hoch qualitatives Produkt.
Fenster können nicht Online über unsere Webseite bestellt werden!
Wir verkaufen keine Standardfenster, sondern individuelle, den Wünschen unserer Kunden angepasste Maßanfertigungen. Der bei den jeweiligen Profilen angegebene Preis stellt nur eine Orientierungshilfe für die Unterschiede zwischen den Profilen dar. Um ein Angebot zu erhalten, schicken Sie uns bitte eine Mail mit folgenden Angaben:
- Fensterprofil
- Farbe (kann auch innen + außen unterschiedlich sein)
- Breite x Höhe (die Fenster werden mit einem Fensterbankanschluss von 3cm Höhe geliefert; sofern es sich um Rohbaumaße handelt und nicht um reine Fenstermaße, dies bitte berücksichtigen, da die 3cm zusätzlich zu den genannten Höhen zu verstehen sind.)
- Stückzahl
- Verglasung, sofern vom Standard des gewählten Profils abweichend; Sofern eine Ornamentverglasung gewünscht wird, bspw. im Badezimmer, dies bitte auch mitteilen
- Öffnungsart und –richtung (s. Tabelle in der Profilbeschreibung)
- Sonderwünsche, bspw: Flachschwelle bei Balkontüren, Sprossen (bitte dann auch Breite, Farbe sowie Verteilung je Fenster angeben), abschließbarer Griff, WK-Beschläge, etc.
- PLZ des Lieferortes zur Errechnung der Versand-/Lieferkosten.
Profil
- VEKA, 7-Kammer-Rahmen mit einer Mitteldichtung und einem 6-Kammer-Flügel mit einer Breite von 82mm, Güterklasse A, mit einem Wärmedurchgangskoeffizient von Uf=1,0 W/m²K
- Profile aus den Schlagbiegefestigkeits-PVC
- Wandstärke des höchsten Qualitätsstandards gemäß PN-EN 12608 Klasse A. Die Fensterprofile der Klasse A zeichnen sich durch die Außenwandbreite aus, die 2,8 mm beträgt, was deren große Stabilität, Widerstandsfähigkeit gegen Beschädigungen und Temperaturschwankungen, sowie perfekte Schalldämmungsparameter garantiert. Die Tragfähigkeit der Beschläge für die Profile der A-Klasse ist um über 30% höher als für die Profile der B-Klasse
- Dreifaches Dichtungssystem mit einer Mitteldichtung. Diese Lösung sichert eine perfekte Dichtigkeit, Schallisolierung, Wärmedämmung und gleichzeitig hält es die Beschlagkammer trocken.
- Profile stehen in der vollen Farb- und holzähnlichen Furnierpalette zur Verfügung.
Stahlarmierung
In der Basisvariante haben unsere modernen Fenster spezielle, vielmals gebogene Verstärkungen aus verzinktem Stahl in den Flügeln und im Rahmen mit auf dem Markt bisher einmaliger Widerstandsfähigkeit. Das ist das wichtigste Element, das vieljähriges und zuverlässiges Funktionieren der Fenster garantiert.
Verglassung
- 2-Kammer-Isoglass mit einem Wärmedurchgangskoeffizient von Ug=0,5 W/m²*K gemäß EN 673, sichert eine sehr hohe Wärmedämmung, die sich an die Isolierung einer Mauer nähert,
- Eine „Warme-Kante” sorgt dafür, dass das Risiko der Wasserdampfkondensation auf der Glasscheibe innerhalb eines Raumes verringert, sowie um ca. 6% die Wärmedämmung des ganzen Fensters erhöht wird.
Beschläg
- ROTO NT. Wir verwenden die Fensterbeschläge des bekanntesten deutschen Herstellers von Beschlägen,
- Oliven Secustik Swing, in welchen zum ersten Mal ein Mechanismus verwendet wurde, der die Umdrehung des Griffes blockiert und zusätzlich bei Einbruchsversuchen sichert. Die sanften Biegungen und ergonomische Formen der Klinke verleihen dem Fenster zusätzlich ein modernes Aussehen und einen unwiederholbaren Charakter,
- 2 Anti-Einbruchszapfen im Flügel. Die PVC-Fenster werden als weniger sicher angesehen, deshalb haben wir uns entschlossen unsere Produkte mit einer zweifachen Absicherung auszustatten. Tausende von Kunden haben bereits die 2 Anti-Einbruchshaken zu schätzen gelernt. Dank dieser Lösung haben sie nicht nur ihr Vermögen verteidigt, sondern auch einen direkten Zusammenstoß mit dem Dieb vermieden,
- MIKRO-LÜFTUNGSSYSTEM ermöglicht ständige Frischluftzufuhr, ohne sie dabei der Kälte auszusetzen,
- MSL-Mehrfache Spaltfüftung in den DK-Flügeln (Fensterhöhe im Bereich von 1117 mm bis 1716 mm). Mit dieser Lösung kann man die Fensteröffnung an die Wetterbedingungen anpassen. Frischluftzufuhr ist ein sehr wichtiger Faktor, der Gesundheit und Wohlbefinden garantiert,
- Fehlbedinungssperre und Flügelheber in den D-K Flügeln (Fensterhöhe im Bereich bis zu 1116 mm und über 1716 mm). Mit diesem Mechanismus statten wir alle Großfenster aus. Das ist unsere Sicherheitsgarantie für die Benutzung und Beständigkeit der Beschläge,
- Kippregler.
Dichtung
EPDM. Die außergewöhnlichen physischen und Nutzungsvorteile haben entschieden, dass wir diesen Dichtungsstoff gewählt haben. Diese Dichtungen sind besonders pflegeleicht, dichtschließend und weisen grösseren Wiederstand gegen Wetterbedingungen aus. Sie sind widerstandsfähig gegen Auswirkungen vom Ozon und zeichnen sich durch die hervorragende Reiß-, Bruch- und Druckfestigkeit aus.
Zubehör
- FBA. Die Fensterbankanschlussleiste ist unten mit Dichtung an das Fenster montiert. Das garantiert eine optimale Verbindung mit den Fensterbänken. Dadurch erhöht sich die thermische und akustische Isolierung der Fenster bedeutend.
- Die festmontierten Trageschnallen erleichtern den Transport des Fensters bei der Montage
Öffnungsmöglichkeiten:
Kipp
Dreh Links
Dreh-Kipp Links
;
Dreh Links + Dreh Rechts
Dreh Links + Dreh-Kipp Rechts
| FR | Fest in Rahme |
| FF | Fest im Flügel |
| K | Kipp |
| DL / DR | Dreh links / rechts |
| DKL / DKR | Dreh-Kipp links / rechts |
| DLS / DRS | Dreh links / rechts mit Stulp |
| KSL / KSR | Kipp-Schiebe links / rechts |
Zuzahlung:
- Dübelbohrung
- Grauer Dichtung
- Innenliegende Sprossen - 8mm, 18mm, 26mm
- Griff mit Schlüssel (Weiß, Braun, Gold, Altgold, Silber, Titanium)
- Griff mit Druckknopf (weiß, braun)
- AERECO 2MO, AMO, EMM Lüfter
- Niedrige Schwelle
Vergleich
| VEKA FENSTER TYPEN - VERGLEICH | ||||||||
| V90+ | V82 | V70OB | VR70 | VS70 | VP70 | VE60 | ||
| VEKA Profile der Stärke 3mm (A-Klasse) | s | s | s | s | s | s | s | |
| 5-Kammer-Profil | - | s | s | s | s | s | ||
| 6-Kammer-Profil | s | - | - | - | - | - | ||
| 7-Kammer-Profil | s | |||||||
| Einbautiefe (mm) | 90 | 82 | 70 | 70 | 70 | 70 | 70 | |
| Geschlossene Stahl-Armierung im Rahmen | s | s | s | s | s | s | o | |
| Roto NT Beschlag | o | s | - | s | s | s | s | |
| Roto NTS Beschlag | - | - | s | - | - | - | - | |
| Roto NT Designo Beschlag (unsichtbare Beschläge) | s | - | o | o | o | o | - | |
| Mikroventilation in Dreh-Kipp-Fenstern | s | s | s | s | s | s | s | |
| 2 Anti-Einbruchszapfen | s | s | s | s | s | s | s | |
| Fehlbedienungssperre oder Fensterhebel | s | s | s | s | s | s | s | |
| Kippstabilisator | s | s | s | s | s | s | s | |
| Stahl-Glasabstandshalter bei 2-fach-Verglasung | o | o | o | s | s | s | s | |
| Thermo-isolierender Glasabstandshalter, "Warme Kante" | s | s | s | o | o | o | o | |
| Scheibenpaket, 1 Kammer U=1,1 nach EN673 | - | - | - | s | s | s | s | |
| Scheibenpaket, 2 Kammern U=0,7 nach EN673 | o | o | o | o | o | o | - | |
| Scheibenpaket, 2 Kammern U=0,5 nach EN673 | s | s | s | - | - | - | - | |
| Fenstergriff Swing Secustic | s | s | s | o | o | o | o | |
| Fenstergriff Aluminium | - | - | - | s | s | s | s | |
| Fensterbankanschluss mit Dichtung | s | s | s | s | s | s | s | |
| Dreifaches Dichtungssystem mit Mitteldichtung | s | s | s | - | - | - | - | |
| Dichtung EPDM (umlaufend) | s | s | s | s | s | s | - | |
| Dichtung EPV (verschweißt) | - | - | - | - | - | - | s | |
| Zertifikat IFT Rosenheim | s | s | s | s | s | s | s | |
| TECHNISCHE EIGENSCHAFTEN | KLASSE | V90+ | V70OB | VR70 | VS70 | VP70 | VE60 | |
| Wasserabdichtung | 6A | s | s | s | s | s | s | |
| 7A | s | s | s | s | s | s | ||
| 8A | s | s | s | s | s | s | ||
| 9A | s | s | s | s | s | s | ||
| Widerstand gegen Windlast | C4 | s | s | s | s | s | s | |
| C5 | s | s | s | s | s | s | ||
| Luftdurchlässigkeit | 3 | s | s | s | s | s | s | |
| 4 | s | s | s | s | s | s | ||
| WÄRMEDURCHGANGSKOEFFIZIENT DES GESAMTEN FENSTERS Uw (W/m2*K) EN 673 | ||||||||
| mit Scheibenpaket U=1,1 | - | - | 1,35* | 1,35* | 1,35* | 1,35* | ||
| mit Scheibenpaket U=0,7 sowie thermo-isolierender Glasabstandshalter "Warme Kante" | 0,89* | 0,9* | 1,07* | 1,07* | 1,07* | - | ||
| mit Scheibenpaket U=0,5 sowie thermo-isolierender Glasabstandshalter "Warme Kante" | 0,75* | 0,76* | - | - | - | - | ||
| SCHALLDÄMMUNG, GESAMTENERGIE - UND LICHTDURCHLÄSSIGKEIT | ||||||||
| Schalldämmwert Rw | 33 | 33 | 33 | 33 | 33 | 33 | ||
| Gesamtenergiedurchlassgrad g-Wert | 47-51 | 47-51 | 60-63 | 60-63 | 60-63 | 60-63 | ||
| Lichtdurchlässigkeitsfaktor LT | 68-72 | 68-72 | 78-80 | 78-80 | 78-80 | 78-80 | ||
Legende:
"-" nicht verfügbar, "s" - Standard, "o" - Option,
* U-wert des Fensters der Referrenzgröße: 1230x1480 mm
- VETREX Sp. z o.o. | Skarszewska 13 | Tczew/Rokitki 83-110 | Polen | [email protected]
W oparciu o okno referencyjne o wymiarach:szer./wys. 1230 x 1480 mm
- 3
- Fenster
- Schiebetüren PSK
- Schiebetüren HS
No posts found





